
您现在正在:首页>>新闻中心>>公司新闻
湖南酷威冷暖中央空调工程设计安装常见问题及解决方案汇总:
1、风管弯头处或弯头较近处设置风口与分支
现象: 某中央空调工程采用吊顶散流器下送风,沿墙壁布置回风口侧下回风,但有一送风管弯头处与弯头较近处设置送风管分支,如图 8 所示,造成分支管风量远小于设计值。
原因: 从风管弯头弯曲处的内曲面到直线部分,在风管宽度约 8 倍(导流叶片时约 4 倍)以下的位置上设置分支或者喷出口时,风量会不足(极端情况下不出风),一般尽可能延长直线距离(离弯头一定距离)设置风口或风管分支。设计者为了均匀布置回风口使气流组织均匀合理,而忽略了弯头与弯头较近的距离不宜设置风口或风管分支。
整改措施:
(1)更改弯头与弯头较近处的分支位置,分支与弯头要有一定的距离;
(2)在弯曲处适当设置导流叶片,如图 9 所示;
(3)在弯头处增设静压箱,如图 10 所示。
2、中央空调末端设计不当引起噪音超标
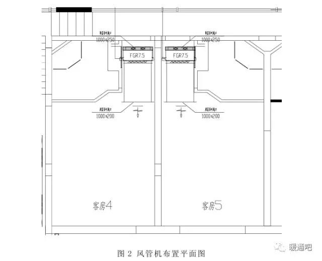
现象一: 某酒店客房采用FGR7.5/A1(风量 1250m3 /h,机外静压 40Pa)风管机直接接风口侧送风,风管机布置如图 1 所示,机组运行后噪音超标,测试噪音高达 52dB(A),引起客户的不满。
原因:
(1)机组选型错误,FGR7.5/A1 风管机带有 40Pa 的机外静压,如果直接接风口侧送风,则机组因静压偏大,导致机组噪音偏高,安装时又未对机组做特殊减噪处理;
(2)为了降低设备初投资与安装成本,而没有按照标准的安装方式进行安装。
现场整改措施: 在条件许可的情况下,机组尽量靠近门侧安装,风管机接送风管送风,以消耗部分静压,噪音明显下降,如图 2 所示。
现象二: 某展厅采用卧式暗装风机盘管单侧侧送风,15 台 FP-204WA 紧密布置,如图 3 所示,机组运行后噪音超标,同样引起客户的不满。
原因:
(1)为了降低设备初投资、与安装成本,以及简化系统,而选择大型号风机盘管;
(2)设计者忽略了标准型风机盘管带有 12Pa 机外静压,直接接风口送风,同样会因机组静压偏大,导致机组噪音偏高,而且风盘布置太密集,造成噪音叠加,使噪音值偏大更多;
(3)设计者没有考虑建筑噪音的要求,直接按室内冷负荷简单选型。现场整改措施:
(1)考虑合理的气流组织,可将 15 台风盘分散布置在展厅两侧,采取对吹的方式送风;
(2)如果条件允许,可采用集中送风,将机组置于空调机房,如果噪音还是无法满足,则可对机房和机组本身采取降噪措施;
(3)如果没有空调机房,可根据冷量需求,将风机盘管改为 2 台吊柜进行集中送风,同时在送风管和回风管上增加消声装置,以及对机组本身采取降噪措施。预设整改措施:
(1)根据建筑噪音的要求,尽量选择噪音低的小型号室内机,如果单台无法满足,则宜选择多台,以降低噪音值;
(2)对于高静压风管机、带静压的风机盘管,不允许直接侧送风,而宜接风管送风,由于标准型风机盘管均带有 12Pa 的机外静压,部分风管机也是非 0 静压的,接一段风管可消耗一部分静压,可有效的减小噪音,如果对噪音要求更高的场所,则还需在送风管和回风管处加消声装置,如图4 所示。
(3)对于办公、住宅、宾馆客房等对噪音有一定要求的场所,机组的回风宜采用后回风形式,接风管或静压箱回风,同时安装消声装置,而不宜采用下回风;
(4)尽量避免两台室内机紧密布置,造成噪音的叠加;
(5)若条件限制不得不选择噪音过大的室内机,设计时应考虑降噪措施;
(6)对于面积较大、层高较高的场所,尽量采用集中送风,并对机组本身增加消声减振措施,以及在送风管和回风管上增加消声装置。
3、中央空调全热新风换气机设计常见问题
现象一: 某工程新风采用全热新风换气机处理新风,但新风入口与排风口布置太近,影响新风换气机的有效新风量从而降低了室内空气品质,同时热回收效率也会下降,如图 5 所示。
(原因: 新风口与排风口太近,会使部分气流短路,一部分排风通过新风管道进入室内,使有效新风量有所减少,影响室内空气质量,达不到空调所需新风量的要求;
一部分排风回灌室内,在减少有效新风量的同时,部分排风与新风混合也降低了新风的进气温度,因而新排风的温差减小,从而使新风换气机的热回收率降低;造成新风与排风短路的因素有:
(1)设计者便于风管布置,没有按《采暖通风与空气调节设计规范》GB50019-2003 的要求设置新风口与排风口,《采暖通风与空气调节设计规范》GB50019-2003 第 5.3.4 条规定:进风口应低于排风口,同时应避免进风、排风短路。
(2)建筑围护结构与甲方要求无法满足新风与排风口的合理布置,设计者为了符合建筑要求,方便布置风口而违反规范。
整改措施:
(1)按《采暖通风与空气调节设计规范》的要求,更改新风与排风口的
(2)在无法避免气流短路的条件下,设置导流风管或挡风板隔开新风口与排风口,避免新风、排风短路,对于我司产品新风入口和排风出口间距至少要保证 H≥4m。
现象二: 某工程设计的全热新风换气机的气流方向与产品的不一致,设计为气流交叉换热,而产品为并行换热,如图 6 所示。
原因: 若施工人员不弄清楚产品的新风与排风的气流方向,按设计图纸直接安装,很容易造成新风走排风管道,排风走新风管道,严重影响空调效果。造成气流方向不一致的主要原因是:设计者不熟悉格力产品,按市场上流行的产品设计。整改措施: 更改设计图纸中的新风管与排风管的布置和气流方向,使施工图纸的气流方向与格力产品的气流方向一致,如图 7 所示。
湖南酷威冷暖专业从事长沙中央空调设计安装、维修保养、中央空调空气净化等业务十多年,我们坚持为客户提供超出预期的专业服务,获得了数万客户的一致认可!
| Copyright @ 澳洲幸运5查询结果 All rights reserved.【备案号:湘ICP备19006145号-2】 长沙中央空调首选湖南酷威中央空调公司,多家知名企业,单位,高端楼盘业主等用户的最佳选择单位,长沙格力中央空调一站式服务供应商,种类齐全,价格优势,品质保障,专业的设计安装团队,强大的售后服务,长沙家用中央空调长沙中央空调服务热线:4001-822-655 |